Shower Wheelchair Dimensions

Handicap Accessible Shower Dimensions Good Idea To Look At If You Are Doing A Bathroom Bathroom Floor Plans Bathroom Dimensions Accessible Shower

Handicap Accessible Shower Dimensions Good Idea To Look At If You Are Doing A Bathroom Bathroom Floor Plans Bathroom Dimensions Accessible Shower

Ada Design Solutions For Bathrooms With Shower Compartments Accessible Bathroom Ada Shower Ada Bathroom

Ada Design Solutions For Bathrooms With Shower Compartments Accessible Bathroom Ada Shower Ada Bathroom

Wheelchair Accessible Bathroom Best Modifications For Accessibility Handicap Bathroom Handicap Bathroom Design Bathroom Floor Plans

Wheelchair Accessible Bathroom Best Modifications For Accessibility Handicap Bathroom Handicap Bathroom Design Bathroom Floor Plans

Image Result For Ada Transfer Shower Dimensions With Built In Seat Accessible Shower Universal Design Bathroom Shower Wheelchair

Image Result For Ada Transfer Shower Dimensions With Built In Seat Accessible Shower Universal Design Bathroom Shower Wheelchair

Wheelchair In A Bathroom Bathroom Floor Plans Handicap Bathroom Design Accessible Bathroom Design

Wheelchair In A Bathroom Bathroom Floor Plans Handicap Bathroom Design Accessible Bathroom Design

Awesome Ada Bathroom Dimensions Ideas Pageglide Com Bathroom Dimensions Ada Bathroom Restroom Design

Awesome Ada Bathroom Dimensions Ideas Pageglide Com Bathroom Dimensions Ada Bathroom Restroom Design

Awesome Ada Bathroom Dimensions Ideas Pageglide Com Bathroom Dimensions Ada Bathroom Restroom Design

99 259 99 count 359 99 359 99.

Shower wheelchair dimensions. They aren t not only just wheelchairs that move around but also able to also handle the shower and toileting very well. Nurth 4 in 1 chair shower commode mobile chair commode shower wheelchair padded toilet seat shower transport chair with 4 brakes removable pedal adjustable armrest pu commode seat and pail 220lb. Ada roll in showers are designed to crate wheelchair accessible shower.

60 x 30 1 4 x 77 1 2. Shower friendly wheelchairs must be able to stand up to the water. Wheel chair entry requires a larger shower opening a minimum of 60 inches with a shower width of at least 30 inches.

Corner shower bathrooms with a side layout are more efficient with a tighter 5 11 x 5 3 1 8 x 1 6 m floor plan while corner showers with a central aisle are larger at 6 6 x 7 2 1 98 x 2 18 m. 4 0 out of 5 stars 14. Our listed shower wheelchair is very comfortable and easy to use for elderly and disabled people.

Doorway size it is common for bathroom and shower doorways to be narrow. Choose from activeaid drive invacare and nova. The best shower wheelchair is very necessary equipment for those who aren t able to walk.

Allow enough clearance in front of the walk in shower for a wheelchair or other differently abled user. For a shower that allows a wheelchair to easily roll in and out the ada recommends a minimum size of 36 x 60 inches. Ada guidelines specify a minimum inside shower dimension of 60 x 30 to allow enough room for someone to enter the shower in a wheelchair or shower chair.

Consider a larger walk in shower if the user will need to enter and exit with help from an aide. Shop spinlife for a complete selection of rehab shower commode chairs. Try the mariner rehab shower commode chair from invacare or the drop arm transport shower chair from nova.

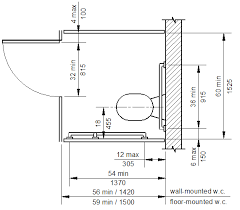
Ada Grab Bar Placement In Shower Yahoo Image Search Results Handicap Toilet Handicap Bathroom Toilet Plan

Ada Grab Bar Placement In Shower Yahoo Image Search Results Handicap Toilet Handicap Bathroom Toilet Plan

Shower For Wheelchair Dimensions Google Search Shower Wheelchair Dimensions

Shower For Wheelchair Dimensions Google Search Shower Wheelchair Dimensions

Bathroom With Enlarged Alternate Roll In Shower Compartments Accessible Bathroom Universal Design Bathroom Bathrooms Remodel

Bathroom With Enlarged Alternate Roll In Shower Compartments Accessible Bathroom Universal Design Bathroom Bathrooms Remodel

Ada Bathroom Requirements Had Been Adjusted To The Needs Of The Wearer Ada Bathroom Bathroom Dimensions Restroom Design

Ada Bathroom Requirements Had Been Adjusted To The Needs Of The Wearer Ada Bathroom Bathroom Dimensions Restroom Design

Accessible Bathroom Floor Plans Bathroom Floor Plans Accessible Bathroom Design Accessible Bathroom

Accessible Bathroom Floor Plans Bathroom Floor Plans Accessible Bathroom Design Accessible Bathroom

Ada Bathroom Sinks Figure 6 1 Accessible Bathroom Design Specs Accessible Sink Or Lav Accessible Bathroom Design Ada Bathroom Handicap Bathroom Design

Ada Bathroom Sinks Figure 6 1 Accessible Bathroom Design Specs Accessible Sink Or Lav Accessible Bathroom Design Ada Bathroom Handicap Bathroom Design

Source : pinterest.com